Home
Product Center
Feedback
Certificates
Contact Us
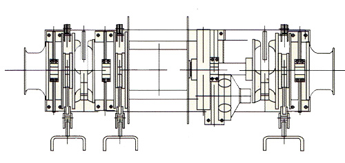
TWO-CHAIN LIFTER HYDRAULIC COMBINED WINDLASS
Home
Product Center
Feedback
Certificates
Contact Us